1-Saule Parkhebebühnen, Einsäulen Parkliften
Um dass gesamte Lieferprogramm anzuschauen, einfach herunterscrollen, um das Bild zu vergrössern einfach drauf klicken
----------------------------------------------------------------------------------------------------------------
ENGEL-1223.185 & 1223.210; 1-SAULE PARKHEBEBÜHNE OHNE BODENRAHMEN !


ENGEL-1223.185 Einsäulen Parkhebebühnen.
ENGEL-1223.210 Einsäulen Parkhebebühnen.
Dies ist unsere PREMIUM 1-Säulen Parklifte, Sie haben mit diesem Modell den Vorteil dass Plattform links oder rechts Auffahrbar sind. (Baugleich)
Dies bringt der Vorteil das die Parkhebebühnen spiegelverkehrt Aufgestellt werden können. ausserdem für Linker oder Rechtermontage geeignet sind so auch für gegenüberliegende Montage ohne Säulen in mitte !., und ist unter Plattform komplett Bodefrei, kann auch geliefert werden mit ein Wandmontage Hubsäule, sodass kein Bodenverankerung stattfinden muss, ideal bei Bodenheizung.
Der Komplette Mittenteil von der Doppelfahrbahnplattform ist herausnehmbar für Service und Unterhaltungsarbeiten an Ihr Fahrzeug oder Oldtimer.
Jede Parkhebebühne wird durch uns Hergestellt, Transportiert, Installiert und betriebsfertig Abgeliefert
Technische Angaben:
- Tragkraft: 2.300 kg. !!!
- Hubhöhe UNTER Plattform gemessen: bei 1223.185 = 1850mm., bei 1223.210 = 2100mm.
- Plattform länge: 3450mm (Nutzbar)
- Plattform breite: 2000mm. (Nutzbar)
- Pulverbeschichtung
- Standard farben: Antrazit RAL 7016 + Orange RAL 2004 (andere Farben möglich gegen Aufpreis.
- Elektrische Verriegelung 24 Volt.
- Antrieb: 220 Volt/50Hz (1-phase)
- Eigengewicht: 1.060kg. / 1.123 kg.
Preisen auf Anfrage.
---------------------------------------------------------------------------
Kontaktieren Sie uns.
---------------------------------------------------------------------------------------------
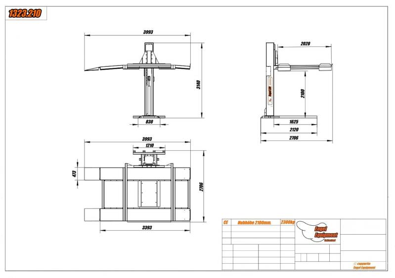
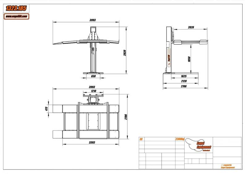
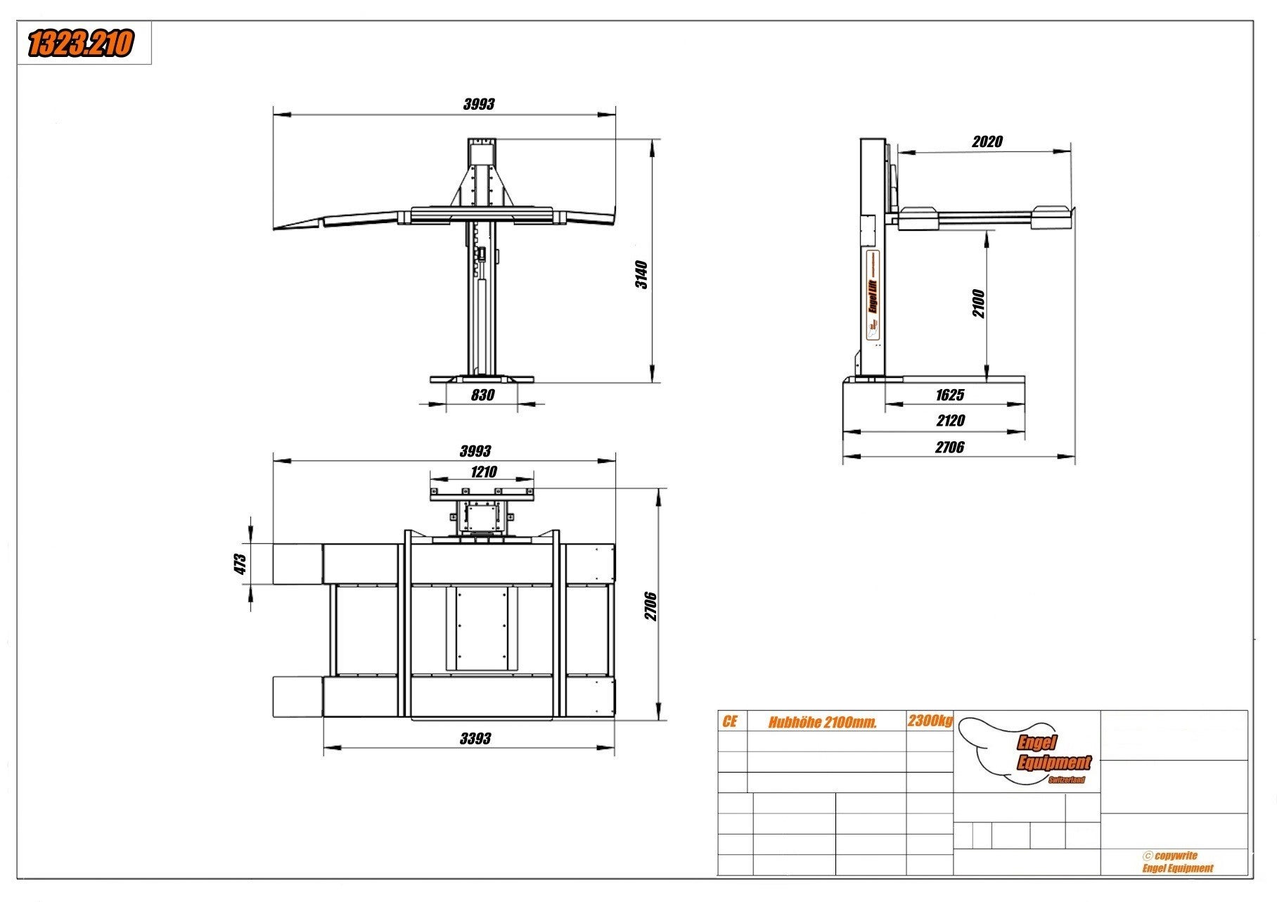
1323.185 & 1323.210; 1-SAULE PARKHEBEBÜHNE
1323.185 ; Einsäulen Parkhebebühnen:
1323.210 ; Einsäulen Parkhebebühnen:
Dies ist einer unsere 1-Säulen Parklifte, Sie haben mit diesem Modell den Vorteil dass Plattform links oder rechts Auffahrbar sind. (Baugleich)
Dies bringt der Vorteil das die Parkhebebühnen spiegelverkehrt Aufgestellt werden können. ausserdem für Linker oder Rechter Montage geeignet sind so auch für gegenüberliegende Montage ohne Säulen in Mitte !.
Der Komplette Mittenteil von der Doppelfahrbahnplattform ist herausnehmbar für Service und Unterhaltung arbeiten an Ihr Fahrzeug oder Oldtimer.
Es gibt auch ein Draussen Aufstellung Model die Feuerverzinkt ist., alle Modelle sind versehen von ein wegnehmbaren Auffahrrampe.
Jede Parkhebebühne wird durch uns Hergestellt, Transportiert, Installiert und betriebsfertig Abgeliefert.
auf Anfrage auch Änderungen und andere Abmessungen beschränkt möglich.
Technische Angaben:
- Tragkraft: 2.300 kg. !!!
- Hubhöhe UNTER Plattform gemessen: bei 1323.185 = 1850mm., bei 1323.210 = 2100mm.
- Plattform länge: 3393mm (Nutzbar)
- Plattform breite: 2020mm. (Nutzbar)
- Pulverbeschichtung
- Standard Farben: Anthrazit RAL 7016 + Orange RAL 2004 (andere Farben möglich gegen Aufpreis.
- Elektrische Verriegelung 24 Volt.
- Antrieb: 220 Volt/50Hz (1-phase)
- Eigengewicht: 1.073kg. / 1.118 kg.
Preisen auf Anfrage.
------------------------------------------------------------------------------
Kontaktieren Sie uns
---------------------------------------------------------------------------------------------
1325.185L & 1325.210L; 1-SÄULEN PARK HEBEBÜHNE
1325.185L ; Einsäulen Parkhebebühnen, Geschlossenes Plattform.
1325.210L ; Einsäulen Parkhebebühnen, Geschlossenes Plattform.
Dies ist einer unsere 1-Säulen Parklifte, Sie haben mit diesem Modell den Vorteil dass 2 verschiedene Plattformen verfügbar sind., Einmal eine Einseitig befahrbares Plattform oder eine beidseitig Auffahrbares Plattform, beide Plattformen sind Baugleich dies bringt der Vorteil das die Parkhebebühnen spiegelverkehrt Aufgestellt werden können. ausserdem für Linker oder Rechter Montage geeignet sind so auch für gegenüberliegende Montage ohne Säulen in Mitte !.
Der Komplette Mittenteil von der Plattform ist vollständig geschlossen und Wasser und Flüssigkeit dicht ! sodass unter parkiertes Fahrzeug oder Oldtimer kein "Leckage" abbekommt von Fahrzeug auf das Plattform.
Es gibt auch ein Draussen Aufstellung Model die Feuerverzinkt ist., alle Modelle sind versehen von ein feste niedrige Auffahrrampe.
Jede Parkhebebühne wird durch uns Hergestellt, Transportiert, Installiert und betriebsfertig Abgeliefert
auf Anfrage auch Änderungen und andere Abmessungen beschränkt möglich.
Technische Angaben:
- Tragkraft: 2.500 kg. !!!
- Hubhöhe UNTER Plattform gemessen: bei 1325.185L = 1850mm., bei 1325.210L = 2100mm.
- Plattform länge: 3400mm (Nutzbar)
- Plattform breite: 2000mm. (Nutzbar)
- Plattform höhe: 110mm.
- Säule höhe 1325.185L: 2960mm.
- Säule höhe 1325.210L: 3140mm.
- Pulverbeschichtung
- Standard Farben: Anthrazit RAL 7016 + Orange RAL 2004 (andere Farben möglich gegen Aufpreis.)
- Elektrische Verriegelung 24 Volt.
- Antrieb: 220 Volt/50Hz (1-phase)
- Eigengewicht: 1.021 kg. / 1.066 kg.
Preisen auf Anfrage.
------------------------------------------------------------------------------
Kontaktieren Sie uns
---------------------------------------------------------------------------------------------
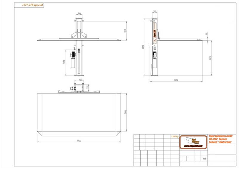
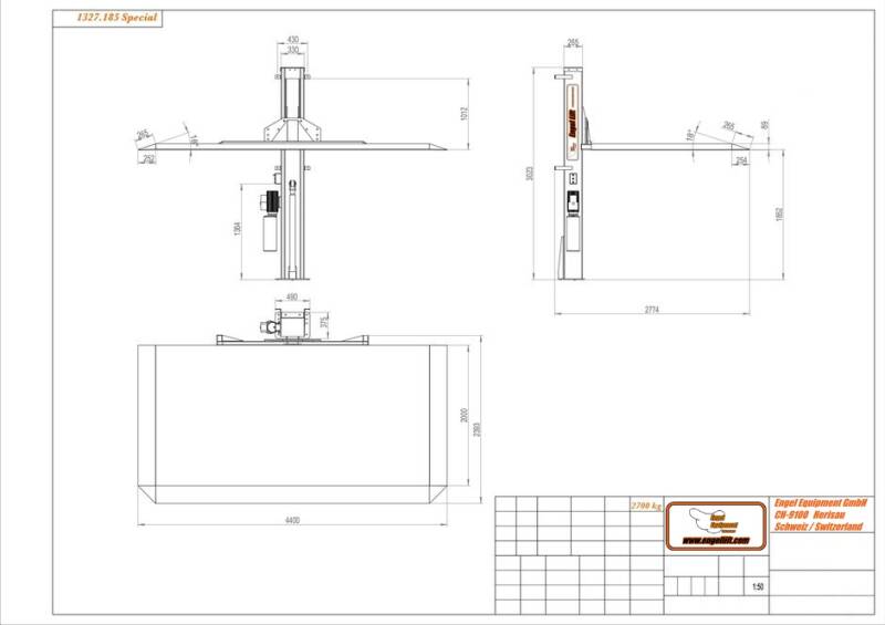
1327.185 & 1327.210; SPEZIELLE 1-SÄULEN PARK HEBEBÜHNE / PARKLIFTE
-WANDMONTAGE.
1327.185 Spezial ; Einsäulen Parkhebebühnen, Geschlossenes Plattform, Wandmontage.
1327.210 Spezial ; Einsäulen Parkhebebühnen, Geschlossenes Plattform, Wandmontage.
Dies ist einer unsere 1-Säulen Parklifte, Sie haben mit diesem Modell den Vorteil dass Sie unter dass Plattform komplett Bodenfrei sind !, der Säule wird an der Wand montiert anstatt auf der Boden mittels ein Bodenrahmen. (Genial für Tiefparkgaragen, Kellerabteile oder Engbemessen Plätze aber braucht ein Stahl-Beton Wand für der Verankerung) , 2 verschiedene Plattformen sind verfügbar ., Einmal eine Einseitig befahrbares Plattform oder eine DREISEITIG auffahrbares Plattform !, beide Plattformen sind Baugleich dies bringt der Vorteil das die Parkhebebühnen spiegelverkehrt Aufgestellt werden können. ausserdem für Linker oder Rechter Montage geeignet sind so auch für gegenüberliegende Montage ohne Säulen in Mitte. !.
Der Komplette Mittenteil von der Plattform ist vollständig geschlossen und Wasser und Flüssigkeit dicht ! sodass unter parkiertes Fahrzeug oder Oldtimer kein "Leckage" abbekommt von Fahrzeug auf das Plattform bei NUR 85mm eigen Bauhöhe.
Jede Parkhebebühne wird durch uns Hergestellt, Transportiert, Installiert und betriebsfertig Abgeliefert.
auf Anfrage auch Änderungen und andere Abmessungen beschränkt möglich.
Technische Angaben:
- Tragkraft: 2.700 kg. !!!
- Hubhöhe UNTER Plattform gemessen: bei 1327.185 = 1850mm., bei 1327.210 = 2100mm.
- Plattform länge: 3400mm (Nutzbar)
- Plattform breite: 2000mm. (Nutzbar)
- Plattform höhe: 85mm.
- Säule höhe 1325.185L: 2960mm.
- Säule höhe 1325.210L: 3140mm.
- Pulverbeschichtung
- Standard Farben: Anthrazit RAL 7016 + Orange RAL 2004 (andere Farben möglich gegen Aufpreis.)
- Elektrische Verriegelung 24 Volt.
- Antrieb: 220 Volt/50Hz (1-phase)
- Eigengewicht: 1.125 kg. / 1.196 kg.
Preisen auf Anfrage.
------------------------------------------------------------------------------
Kontaktieren Sie uns
---------------------------------------------------------------------------------------------
1327.185 BRPA & 1327.210 BRPA; SPEZIELLE 1-SÄULEN PARKHEBEBÜHNE
-BRPA STANDALONE UNITS
1327.185 BRPA ; Einsäulen Parkhebebühnen, Geschlossenes Plattform, Stand Alone Montage:
1327.210 BRPA ; Einsäulen Parkhebebühnen, Geschlossenes Plattform, Stand Alone Montage:
Dies ist einer unsere 1-Säulen Parklifte, der Säule wird auf der Boden mittels ein sehr niedrige Bodenrahmen. (Genial für Tiefparkgaragen, Kellerabteile oder Engbemessen Plätze, Ein Plattform mit integriertes Mittenteil was ein kleine überfahrbare Ausbuchtung ergibt aber eine DREISEITIG auffahrbares Plattform !
Der Komplette Mittenteil von der Plattform ist vollständig geschlossen und Wasser und Flüssigkeit dicht ! sodass unter parkiertes Fahrzeug oder Oldtimer kein "Leckage" abbekommt von Fahrzeug auf das Plattform bei NUR 85mm + (80mm) eigen Bauhöhe.
Jede Parkhebebühne wird durch uns Hergestellt, Transportiert, Installiert und betriebsfertig Abgeliefert
Technische Angaben:
- Tragkraft: 2.700 kg. !!!
- Hubhöhe UNTER Plattform gemessen: bei 1327.185BRPA = 1850mm., bei 1327.210BRPA = 2100mm.
- Plattform länge: 3400mm (Nutzbar)
- Plattform breite: 2000mm. (Nutzbar)
- Plattform höhe: 85mm.
- Säule höhe 1325.185BRPA: 3096mm.
- Säule höhe 1325.210BRPA: 3346mm.
- Pulverbeschichtung
- Standard Farben: Anthrazit RAL 7016 + Orange RAL 2004 (andere Farben möglich gegen Aufpreis.
- Elektrische Verriegelung 24 Volt.
- Antrieb: 220 Volt/50Hz (1-phase)
- Eigengewicht: 1.205 kg. / 1.279 kg.
Preisen auf Anfrage.
-------------------------------------------------------------------------------