HOCHHUB PARKHEBEBÜHNEN. - Transport Hebebühnen

Um dass gesamte Lieferprogramm anzuschauen, einfach herunterscrollen, um das Bild zu vergrössern einfach drauf klicken

----------------------------------------------------------------------------------------------------------------

ENGEL-HR4035;  4-SÄULEN DOPPEL PARKHEBEBÜHNE (4.000KG.) HOCHHUB.

DOPPELPLATTFORM ÜBER 5 METER BREIT ! MIT 4.000 KG BEI 3500MM HUBHÖHE

ENGEL-HR4035 ; Hochhub  4-Säulen Doppel Parkhebebühnen:

 

Dies ist einer unsere 4-Säulen Parklifte, Sie haben mit diesem Modell den Vorteil dass Sie doppelt Fahrzeugen hoch parken können auf der untere Plätzen höhere Fahrzeugen wie Wohnmobile, Boote, oder Lastwagen abstellen können  daher speziell entwickelt für Hallen, und Gebäuden mit ein etwas höhere Decke, oder wo eine Lift gebraucht wird nach ein Zweiter ebene., oder beides.  

wenn Sie kein Möglichkeit haben Ihre Gebäude zu erweitern in der Breite oder Länge, dann gehen Sie einfach nach oben, in der höhe" mit diese QuadroParker  Parkliften.

Der Komplette Mittenteil von Plattform ist Wasser -und Flüssigkeit dicht, da tropft nicht ab zum unterparkierte  Fahrzeug oder Oldtimer.

Es gibt auch ein Aussen Aufstellung Model die Feuerverzinkt ist., alle Modelle sind versehen von ein feste Auffahrrampe.

 

Jede Parkhebebühne wird durch uns Hergestellt, Transportiert, Installiert und betriebsfertig Abgeliefert     

Technische Angaben:

  • ​​​​​​​Tragkraft: 4.000 kg. !!!
  • Säulenhöhe: 3900 mm. 
  • Hubhöhe UNTER Doppel Plattform gemessen: 3500 mm.
  • Plattform breite: 5000mm. (Nutzbar)
  • Pulverbeschichtung, oder Verzinkt gegen Aufpreis
  • Standard Farben: Anthrazit RAL 7016 + Orange RAL 2004  (andere Farben möglich gegen Aufpreis).
  • Elektrische Verriegelung 24 Volt.
  • Antrieb: 400 Volt/50Hz (3-phase) 
  • Eigengewicht: 1.885kg. 

 

Preisen auf Anfrage.

​​​​​​​----------------------------------------------------------------------------

Kontaktieren Sie uns

---------------------------------------------------------------------------------------------

 

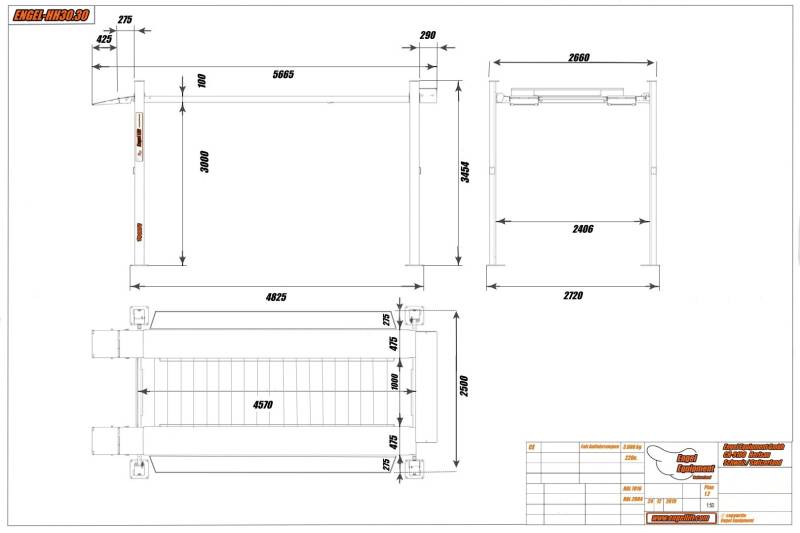
ENGEL-HR30.304-SÄULEN HOCHHUB PARK & TRANSPORT HEBEBÜHNE (3.000KG.)

ENGEL-HR30.30 ; Hochhub  4-Säulen Transport &  Park hebebühnen:

 

Dies ist einer unsere 4-Säulen Parklifte, Sie haben mit diesem Modell den Vorteil dass Sie doppelt Fahrzeugen hoch parken können auf der untere Plätzen höhere Fahrzeugen wie Wohnmobile, Boote, oder Lastwagen abstellen können  daher speziell entwickelt für Hallen, und Gebäuden mit ein etwas höhere Decke, oder wo eine Lift gebraucht wird nach ein Zweiter ebene., oder beides.  

wenn Sie kein Möglichkeit haben Ihre Gebäude zu erweitern in der Breite oder Länge, dann gehen Sie einfach nach oben, in der höhe" mit diese Transport- Parkliften.

Der Komplette Mittenteil von Plattform ist Wasser -und Flüssigkeit dicht, da tropft nicht ab zum unterparkierte  Fahrzeug oder Oldtimer.

Es gibt auch ein Aussen Aufstellung Model die Feuerverzinkt ist., alle Modelle sind versehen von ein feste Auffahrrampe.

 

Jede Parkhebebühne wird durch uns Hergestellt, Transportiert, Installiert und betriebsfertig Abgeliefert     

Technische Angaben:

  • ​​​​​​​Tragkraft: 3.000 kg. 
  • Säulenhöhe: 3454 mm. 
  • Hubhöhe UNTER Doppel Plattform gemessen: 3000 mm.
  • Plattform breite: 2200mm. (Nutzbar)
  • Durchfahrbreite: 2406mm.
  • Plattformlänge: 4570mm. (Nutzbar) 
  • Pulverbeschichtung, oder Verzinkt gegen Aufpreis
  • Standard Farben: Anthrazit RAL 7016 + Orange RAL 2004  (andere Farben möglich gegen Aufpreis).
  • Elektrische Verriegelung 24 Volt.
  • Antrieb: 220 Volt/50Hz (1-phase) , 2.2kW.
  • Eigengewicht: 1.078kg. 

 

Preisen auf Anfrage.

-------------------------------------------------------------------------------------

---------------------------------------------------------------------------------------------

 

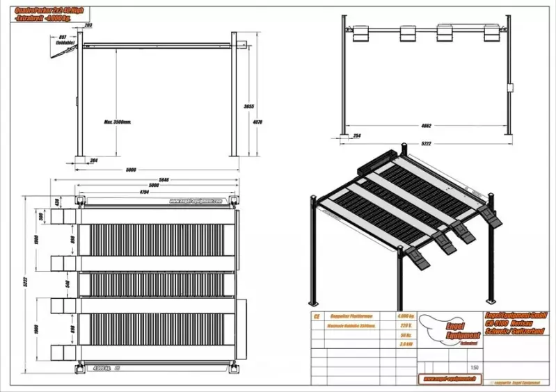
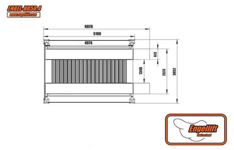
ENGEL-HR50.44-SÄULEN HOCHHUB PARK & TRANSPORT HEBEBÜHNE (5.000KG.)

ENGEL-HR50.4 ; Hochhub  4-Säulen Transport & Parkhebebühnen:

 

Dies ist einer unsere 4-Säulen Parklifte, Sie haben mit diesem Modell den Vorteil dass Sie doppelt Fahrzeugen hoch parken können auf der untere Plätzen höhere Fahrzeugen wie Wohnmobile, Boote, oder Lastwagen abstellen können  daher speziell entwickelt für Hallen, und Gebäuden mit ein etwas höhere Decke, oder wo eine Lift gebraucht wird nach ein Zweiter ebene., oder beides.  

wenn Sie kein Möglichkeit haben Ihre Gebäude zu erweitern in der Breite oder Länge, dann gehen Sie einfach nach oben, in der höhe" mit diese QuadroParker  Parkliften.

Der Komplette Mittenteil von Plattform ist Wasser -und Flüssigkeit dicht, da tropft nicht ab zum unterparkierte  Fahrzeug oder Oldtimer.

Es gibt auch ein Aussen Aufstellung Model die Feuerverzinkt ist., alle Modelle sind versehen von ein feste Auffahrrampe.

 

Jede Parkhebebühne wird durch uns Hergestellt, Transportiert, Installiert und betriebsfertig Abgeliefert     

 

Technische Angaben:

  • ​​​​​​​Tragkraft: 5.000 kg. !!!
  • Säulenhöhe: 4578 mm. 
  • Hubhöhe UNTER Doppel Plattform gemessen: 4000 mm.
  • Plattform breite: 2573mm. (Nutzbar)
  • Durchfahrbreite: 3288mm.
  • Plattformlänge: 4974mm. (Nutzbar) 
  • Pulverbeschichtung, oder Verzinkt gegen Aufpreis
  • Standard Farben: Anthrazit RAL 7016 + Orange RAL 2004  (andere Farben möglich gegen Aufpreis).
  • Elektrische Verriegelung 24 Volt.
  • Antrieb: 400 Volt/50Hz (3-phase) , 4.0kW.
  • Eigengewicht: 1.992kg. 

 

Preisen auf Anfrage.

------------------------------------------------------------------------------

---------------------------------------------------------------------------------------------

 

ENGEL SH-3500: HOCHHUB SCHEREN TRANSPORT HEBEBÜHNE. 

Engel SH-3500 : Hochhub Scheren Transport Hebebühne.

 

Dies ist einer unsere Transport Scherenlifte / Hochhub Scheren Hebebühne, mit Patentierte Hubsystem, was ein Garant ist von ein haargenaue Gleichlauf der Scheren ist beim Anhub sowie beim Absenken.

Diese Transport Hebebühne steht auch sehr gut in jeder Auto Dealer seinen Schauraum, um eine Zweiter Etage anzufahren Schaufläche zum verdoppeln., lieferbar in verschiedenen Plattform breiten und Hub höhen, um jede Fahrzeug oder Gegenstand zu Transportieren zu verleihen. auch ist ein spezielle (Schauraum) Bedienungpult  verfügbar.

Der Komplette Mittenteil von der Fahrbahn ist geschlossen, und versehen von ein Lichtschrank gegen unbeabsichtigt absenken von der Plattform., diese Hochhub Transport Hebebühne muss in eine grübe verbaut werden

 

Diese Transport Hebebühnen werden als Einzel Projekten angeboten und speziell in unser Werk als Einzel gebaut  

 

Jede Transport Hebebühne wird durch uns Hergestellt, Transportiert, Installiert und betriebsfertig Abgeliefert     

Technische Angaben:

  • ​​​​​​​Tragkraft: 3.500 kg. !!! (auf Anfrage auch höhere lasten möglich)
  • Hubhöhe UNTER Plattform gemessen: Bis 3.200 mm. (nachher wird es doppelscheren Bühnenbau) 
  • Plattform länge: je nach Projekt
  • Plattform breite: je nach Projekt
  • Pulverbeschichtung
  • Standard Farben: Anthrazit RAL 7016 + Orange RAL 2004  (andere Farben möglich gegen Aufpreis).
  • Elektrische Verriegelung 24 Volt.
  • Antrieb: Nach Projekt
  • Eigengewicht: je nach Projekt

 

Projekt Arbeit, Preisen auf Anfrage.

​​​​​​​------------------------------------------------------------------------------

---------------------------------------------------------------------------------------------

 

ES-3000: HOCHHUB SCHEREN PARKHEBEBÜHNE HOCHHUB TRANSPORT HEBEBÜHNEN

ES-3000 : Hochhub Scheren Parkhebebühne.,  Hochhub Transport Hebebühnen.

 

Der ES-3000 ist eine weiter Entwickelung basiert auf der SP-2700 Bauart von Scheren Parkhebebühnen, auch versehen von uns E.S.H.S Hubsystem was ein Garant ist für ein Haargenaue Gleichlauf der Scheren bei anhub sowie bei absenken.

Der ES-3000 ist gedacht als ein Parkhebebühne mit der Möglichkeit als "Transport Hebebühnen" nach dem zweiter Stock, und ein Grossraum Fahrzeug (z.b Wohnmobil, Lieferwagen, oder Kleinlaster) darunter zum Parkieren

Der "Standard" Hebebühne hat ein Tragleitung von 2.500 kg, und hat ein Hub von 3 Meter  maximal.

wir bauen diese Scheren Hebebühnen auch in Doppel Scheren mit ein Hub von 6 Meter maximal.

und auch mit Triple Scheren, aber dann in doppelt mit ein Hub von 9 Meter maximal.

 

Technische Daten:

  • Tragkraft; 2.500 kg / 3.000 kg auf Anfrage
  • Hubhöhe Oberkante Plattform: max. 3.000 mm.
  • Durchfahrhöhe unterseits Plattform: 2.650 mm.
  • Durchfahrbreite: 2.150 mm, auf Wunsch bis 2.600mm möglich.
  • Plattform länge: 5130 mm. (Nützbar 4576mm)
  • Plattform breite: 2.450 mm, auf Wunsch bis 2.950 mm möglich.
  • Antrieb: 220V/50Hz oder 380 V/50Hz.

 

Preisen auf Anfrage.

------------------------------------------------------------------------------